2014 / Saint-Louis, Marseille (13)
Licence 3 / ENSA Marseille

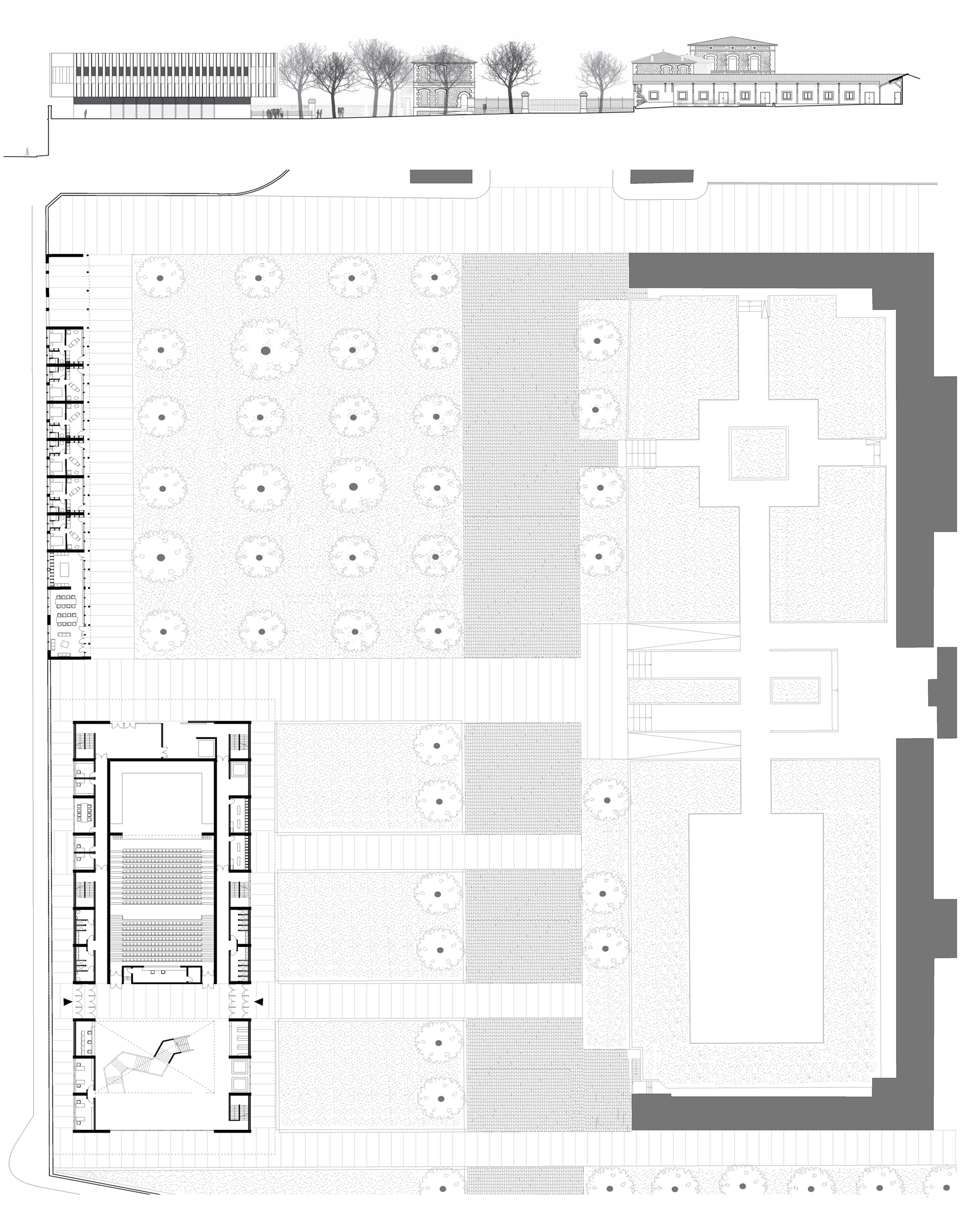
Dans les anciens abattoirs de Saint Louis, au Nord de Marseille, on choisit d’implanter un équipement de spectacle. Le mur de soutènement présent sur le site étant déjà en lui-même un spectacle, le projet du théâtre joue avec la trame de ce mur, avec cette rigidité classique, comme pour s’en approprier la force. Dans une structure en portiques s’installent ensuite les espaces majeurs de la représentation théâtrale : le foyer, la salle, la scène, trois volumes aux dimensions égales en plan, mais aux qualités spatiales très différentes…


